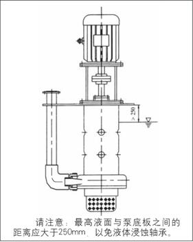
FWY型耐磨液下泵的結構特點及其有點?
日期:2018-07-17 人氣:1031
FWY型耐磨液下泵的結構特點
1.中間滑動軸承無需冷卻液。國內外同類長軸液下泵一般都需外供或內供冷卻中間滑動軸承,而本結構采用了進口中間滑動軸承,不需冷卻液冷卻,使用十分方便。并且解決了由于長軸液下泵因階段性缺冷卻液造成中間滑動軸承燒壞導致震動的難題。
2.中間管軸組合式結構。根據伸入長度不同,中間管軸可由數量不等的組合體組成。每一節為一個組合體,節與節可互換。
此種結構形式具有以下優點:
1.便于運輸。泵長度超過3m時可拆卸運輸,現場組裝。減少運輸過程中造成的彎曲現象和超長時的運輸包裝費用。
2.便于維修安裝。在使用過程中如某一節損壞,只需更換此節,不需全部拆卸維修,大大縮短了維修時間且維修方便。
3.機動性大。如需加長或縮伸入長度,只需增加或減少組合體即可達到目的。
4.軸封采用防沙盤加特種耐磨機械密封的密封形式,密封可靠且確保了泵的使用壽命。
5.在機械密封室中,可選本公司生產的高靈敏度CGY型漏水檢測傳器,以檢測機械密封漏水情況。如果機械密封發生漏水,傳感器能夠檢測到并且把信號傳送到控制箱上(如果配有本公司生產控制箱),則控制箱自動切斷電源,并發出警報,請求維修。
6.泵從進口方向看為逆時針旋轉。
7.在輸送介質為軟性渣漿時,可將密封部位改為硬質碳化硅軸套.



